
|
承重柱和承重墙区也是写字楼等级的重要节点
作者:bjwjly.com 来源:admin5 发布时间:2021-08-12 16:31 浏览量:
中关村的硅谷科技大厦和鼎好大厦都改造成了租金超过10元的写字楼,就租金水平而言,在中关村已经是第一梯队了,部分楼层带露台,从配套,硬件上而言,不比理想国际大厦,卫通大厦等差,但是有一点无论设计师水平再高,也改变不了,就是楼梯本身的承重柱和承重墙。因为原来大楼设计理念和工艺的原因,房间内柱子偏多,城市更新项目一般会对柱子做美化处理,但是绝对不会动拆掉柱子的主意。印象中敢这么做的就只有安定门的中粮置地项目,那基本上是拆掉重建了!
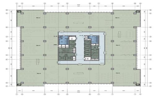
下图中第二张图和四张图是硅谷科技大厦和鼎好大厦A座的户型图,可以很清晰的整层的空间里边内侧有多个承重柱(硅谷科技单层2500平米左右,鼎好高层2100平米左右)。
然后我们再看亚奥南区的天圆祥泰大厦和中服地块的正大中心,这两个都是顶级办公楼代表,整层空间里边只有外侧紧邻墙壁有柱子,单层面积均为2000平米左右,这样的设计在新建的办公楼里边是标配,空间非常便于分割!(望京soho就别提了,对他而言美观才是第一位的)
大家也可以看看其他城市更新项目做一下对比是不是这个情况,但是并不是说城市更新项目一定处于劣势,比如万科望京中心因为是商业改造,单层面积大和层高能达到4.5米就是很大的优势!吸引了keep(北京卡路里科技有限公司),HIGO,唱吧等公司的入驻!
新风系统也做了、网格地板也配了、管理北京最好楼的那批物业我们也雇佣了!论硬件我们不比任何一个新建的大楼差啊,为什么我们办公项目在和其他新楼竞争的时候处于劣势,招目标租户成本极高呢?我想: 承重柱和承重墙区也是写字楼等级的重要节点。 |